PRIMARY BATH +

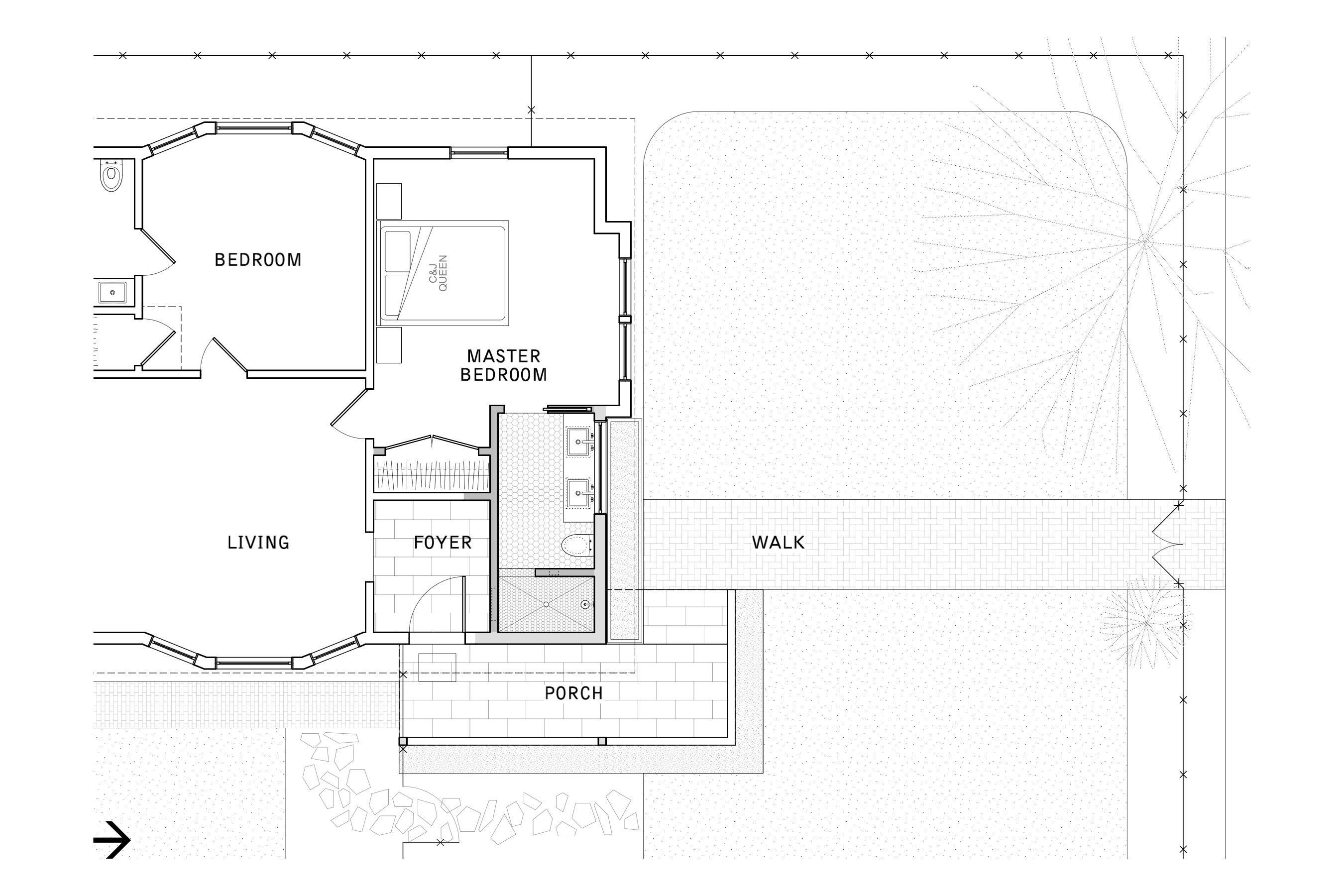
In order to improve the primary bathroom and closet for this one-story, single family Fremont residence, an existing front porch was claimed and infilled as interior space. Entry to the foyer was moved to the side of the house, and a porch was built outside the existing building envelope. Considering that these were major maneuvers to improve a small amount of interior space, the project became as much about exterior space as it was about the relatively minor interior improvements.


The bathroom was built in a straightforward manner. Natural light was available only from the front elevation, in alignment with the entry sidewalk; a clerestory window was used to provide privacy. On the interior, the clerestory is built into an oversized frame that includes a large vanity mirror, to minimize the number of shapes and lines in the relatively small space.

Budgetary and environmental impacts of the new work were minimized by using post-footings to eliminate subsurface drainage work, and by designing new construction to integrate with the existing landscape features. The latter eliminated the need for new sidewalks, and allowed existing changes in ground cover to be easily reused or adjusted slightly for planting beds.

Cedar was applied directly to framing in a breathable condition, eliminating typical waterproofing layers. The lean construction works toward a stylish entrance with clean lines and bold structure.

The photographs represent one phase of construction; planting will take place at the side of the porch and in planters at the termination of the sidewalk. In coming years, new work will be designed and built to further integrate the new material palette into the greater whole.
Project Engineer: Joe Igber, SEDR Consulting
General Contractor: Jeff Weed, California Home Solutions