Addition to and renovation of a 1920’s San Francisco home.

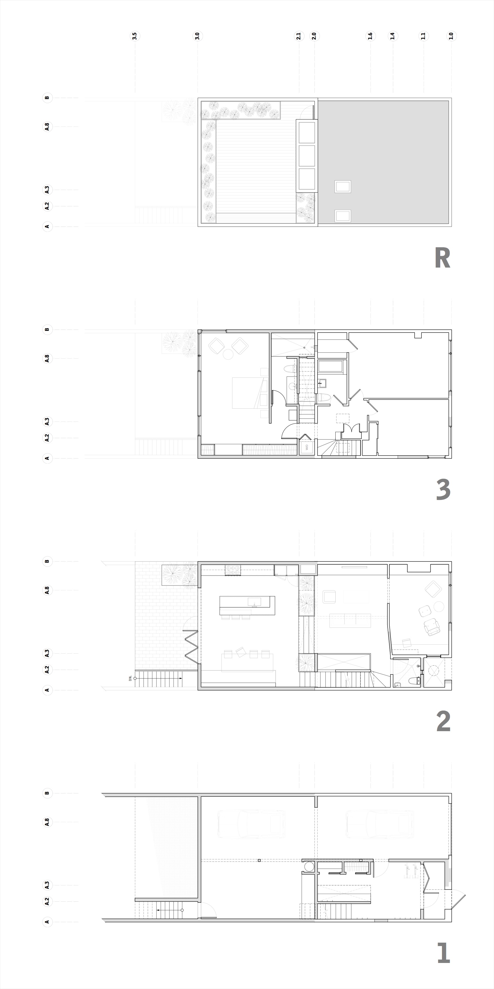
In doubling the livable area of this residence, two maneuvers were employed. The first and most obvious was to extend the house into the rear yard to the extent of the legal setback.

The second was to recover space in the garage level by replacing a service stair and the main entry stair with a vestibule, entry foyer, and single interior entry stair.

In extending the length of an urban house that extends in width from property line to property line, natural light becomes a challenging issue for the middle zone of the house. In the case of this project, the client required a roof deck from which to take in views of the city.

A full stair with a glass-topped bulkhead was added to the center of the upper floor. In order to bring natural light into both the upper and main levels, perforated metal treads and risers filter light into the main level, while interior windows transfer light from the stairwell to the primary bath.
Project Engineer: Joe Igber, SEDR Consulting


